Používame cookies

Súbory cookie a ďalšie technológie sledovania používame na zlepšenie vášho zážitku z prehliadania našich webových stránok, na to, aby sme vám zobrazovali prispôsobený obsah a cielené reklamy, na analýzu návštevnosti našich webových stránok a na pochopenie toho, odkiaľ naši návštevníci prichádzajú. Viac info

  • facebook
  • instagram
  • tiktok
 

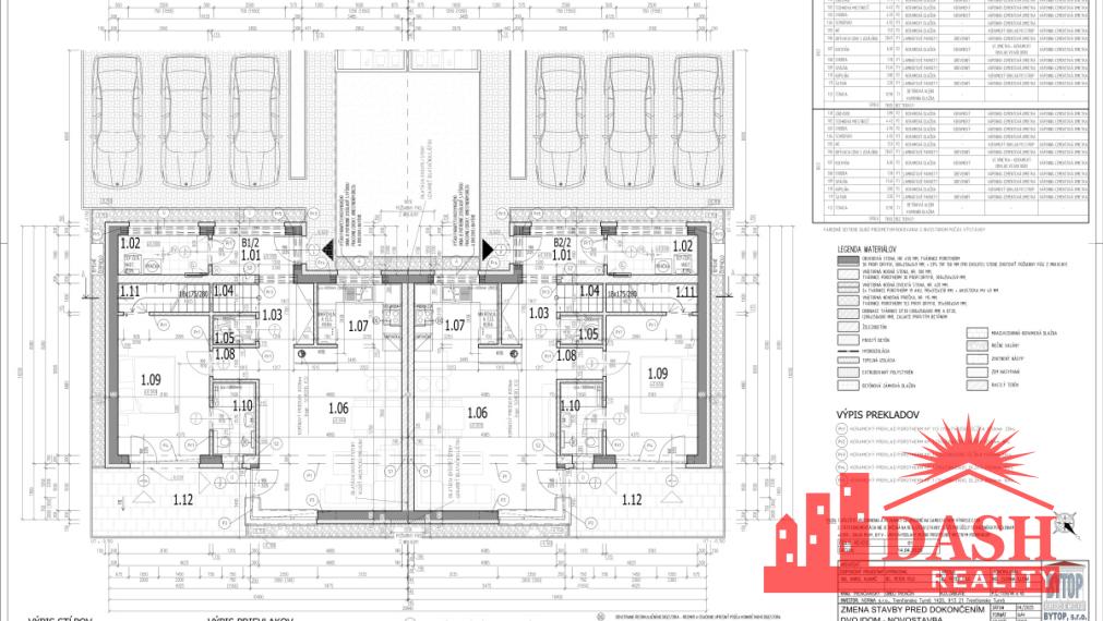
Na predaj novostavba- 4 izbový rodinný dom, 363 m2, Trenčín, časť Záblatie

Interné ID: 28
Ulica: Lúčky
Mestská časť: Záblatie
Obec: Trenčín
Okres: Trenčín
Kraj: Trenčiansky kraj
Druh: Domy
Typ: Predaj
Typ domu: Rodinný dom
Iné:
310 000 €

Popis nehnuteľnosti

DASH reality vám ponúka na predaj moderný, bezbariérový 4 izbový rodinný dom, ktorý sa nachádza v novovzniknutej štvrti mesta Trenčín, časť Záblatie, ulica Lúčky.

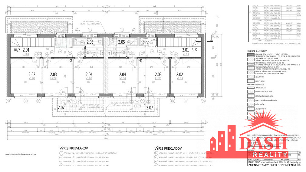
Táto nehnuteľnosť predstavuje ideálnu voľbu pre rodiny hľadajúce pokojné bývanie s výbornou dostupnosťou do centra mesta. Dom je súčasťou dvojdomu, pričom obe bytové jednotky sú od seba konštrukčne a staticky úplne nezávislé, čo zaručuje maximálne súkromie.

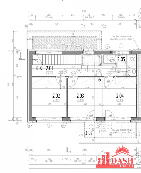
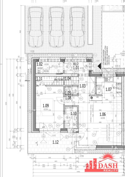
Základné parametre: Celková výmera pozemku je 363 m2, podlahová plocha domu je 106 m2 + terasa 15,3 m2. Prístup k domu je zabezpečený z novej asfaltovej komunikácie vybavenej verejným osvetlením a chodníkmi. Nehnuteľnosť je zaradená do energetickej triedy A1, čo z nej robí nízkoenergetický dom s minimálnymi prevádzkovými nákladmi.

Dispozícia domu: zádverie, chodba, technická miestnosť, spálňa s priamym výstupom na terasu, 2 detské izby, kúpeľňa s WC, samostatné WC, obývacia izba prepojená s jedálňou a kuchyňou, z ktorej je taktiež prístup na terasu.

Technické vybavenie : Dom sa predáva v štádiu holodom, čo budúcemu majiteľovi otvára priestor pre dokončenie interiéru podľa vlastných predstáv, dá sa dohodnúť aj dokončenie do štandardu.

Je postavený z tehly Porotherm 300 mm so zateplením 200 mm a plastové okná s izolačným trojsklom, hlinikové bezpečnostné vchodové dvere. 

Inžinierske siete: plyn, kanalizácia, obecná voda, elektrina, optika, možnosť studne.

Vykurovanie a ohrev vody: podlahové kúrenie s plynovým kondenzačným kotlom Buderus.

V obývačke je predpríprava na krb, klimatizáciu, alarm, exteriérové žalúzie a kamerový systém, dom bude vymaľovaný na bielo.

Exteriér: v cene je kompletná fasáda, zateplenie, terénne úpravy, oplotenie a spevnené plochy zo zámkovej dlažby.

Parkovanie: vydláždená plocha pred domom poskytuje priestor pre 3 parkovacie miesta.

Kolaudácia a odovzdanie domu sa plánuje cca december 2026.

Lokalita a dostupnosť : Nová rezidenčná lokalita v Trenčíne ponúka úplnú občiansku vybavenosť v blízkom okolí. Strategická poloha umožňuje rýchly presun do centra mesta aj napojenie na hlavné dopravné ťahy a diaľnicu. Predpokladaný termín dokončenia a kolaudácia je apríl 2026.

V cene je kompletný právny servis - vyhotovenie kúpnych zmlúv a návrhu na vklad právnikom, vybavenie financovania s najlepšími finančnými podmienkami na trhu, spolupracujeme so všetkými bankami. 

V prípade záujmu o ďalšie informácie alebo dohodnutie termínu obhliadky ma kontaktujte na telefónnom čísle: 0948 014 108.

Vlastnosti

Status:
aktívne
Vlastníctvo:
korporácia
Plocha pozemku:
363 m2
Typ zeme:
rovina
Úžitková plocha:
106 m2
Zastavaná plocha:
121 m2
Podlahová plocha:
106 m2
Stav:
novostavba
Počet izieb:
4
Energetický certifikát:
A
Energetická náročnosť budovy:
Nízkoenergetický
Typ budovy:
tehla
Typ výbavy:
holopriestor
Terasa:
áno
Rok výstavby:
2025
Rok kolaudácie:
2026
Celková plocha:
363 m2
Počet terás:
1
Počet vonkajších parkovacích miest:
3
Inžinierske siete:
áno
Voda:
áno
Elektrika:
áno
Plyn:
áno
Voda - na pozemku:
áno
Elektrika - na pozemku:
áno
Plyn - na pozemku:
áno
Vykurovanie - podlahové:
áno
Internet:
áno
Optická sieť:
áno

Informatívna úverová kalkulačka

Pozrieť na mape

Maklér

Dáša Chupáčová RSc.

Dáša Chupáčová RSc.

Konateľ l Realitný maklér
Hypotekárny špecialista

  • Slovensky
  • Česky
  • English

V oblasti realitného biznisu pôsobím už 14 rokov, čo mi prinieslo cenné skúsenosti. Práca s nehnuteľnosťami a ľuďmi je pre mňa viac než len zamestnaním – je to môj životný štýl.

Každý deň sa nadšene venujem svojej práci s cieľom pomáhať ľuďom nájsť svoj vysnívaný domov.

Moja snaha je zabezpečiť, aby každý klient, s ktorým spolupracujem, zažil kvalitný a bezproblémový proces pri kúpe, hľadaní alebo prenájme nehnuteľnosti. S každou nehnuteľnosťou, ktorou sa zaoberám, pracujem s maximálnou starostlivosťou a vnímam ju tak, akoby to bola moja vlastná.

Okrem toho, pracujem aj ako hypotekárna maklérka s odbornými skúškami Národnej banky Slovenska. Týmto spôsobom moji klienti majú možnosť získať kompletné riešenie pri kúpe nehnuteľnosti, pričom financovanie je tiež pod mojou kontrolou. Spolupracujem so všetkými bankami, aby som im poskytla široký výber možností.

Mojím hlavným cieľom je budovať dlhodobé vzťahy s klientmi a ich potreby sú pre mňa vždy na prvom mieste. Najväčšou odmenou sú pre mňa spokojní klienti, ktorí sa na mňa s dôverou opakovane obracajú.

Radi Vám poradíme

Podobné nehnuteľnosti